REQUEST A TOUR If you would like to see this home without being there in person, select the "Virtual Tour" option and your agent will contact you to discuss available opportunities.
In-PersonVirtual Tour

Listed by Steve Frye • simpliHOM
$ 565,000
Est. payment /mo
Active
1828 Jefferson St Nashville, TN 37208
6,969 Sqft Lot
UPDATED:
Key Details
Property Type Commercial
Sub Type Unimproved Land
Listing Status Active
Purchase Type For Sale
MLS Listing ID 2989760
Lot Size 6,969 Sqft
Property Sub-Type Unimproved Land
Property Description
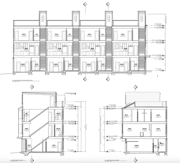
**Incredible 5 Unit Development Opportunity Near Downtown Nashville & Germantown!** Positioned just over a mile from the heart of Germantown and minutes to Downtown Nashville, this 0.16-acre commercial-zoned CS lot at 1828 Jefferson Street is surrounded by rapid growth and major investment. Price includes $40,000 worth of architectural, site, and building plans!! Located one block from Meharry Medical College and within walking distance to Fisk and Tennessee State University, this site sits in one of Nashville's most promising corridors for residential or short-term rental development. Approved site plans, architectural drawings, and a grading permit are already in hand for either 4 or 5 non-owner-occupied short-term rental townhomes—making this a turnkey opportunity for developers and investors looking to capitalize on Nashville's thriving STR market. With major universities, emerging businesses, and the city's core just minutes away, this property checks all the boxes for location, demand, and upside. Don't miss your chance to build in one of Nashville's fastest-growing urban pockets.
Location
State TN
County Davidson County
Zoning CS
Interior
Fireplace N






