REQUEST A TOUR If you would like to see this home without being there in person, select the "Virtual Tour" option and your agent will contact you to discuss available opportunities.
In-PersonVirtual Tour

Listed by Jason Murphy • Crye-Leike, Inc., REALTORS
$ 372,576
Est. payment /mo
Active
213 Sandalwood Way Dickson, TN 37055
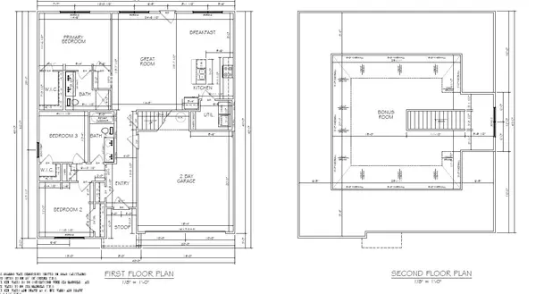
3 Beds
2 Baths
1,333 SqFt
UPDATED:
Key Details
Property Type Single Family Home
Sub Type Single Family Residence
Listing Status Active
Purchase Type For Sale
Square Footage 1,333 sqft
Price per Sqft $279
Subdivision Autumnwood
MLS Listing ID 3041899
Bedrooms 3
Full Baths 2
HOA Fees $55/mo
Property Sub-Type Single Family Residence
Property Description
Welcome to Dickson's newest neighborhood - Autumnwood. Surprisingly well appointed homes proudly built by Kyle Clark Construction. All brick (no vinyl or fiberboard maintenance / painting!). This home has an extra large attic. It can be left an attic, finished out by the buyer at a later date or the buyer can opt to upgrade and have the builder finish it out. 9 foot ceilings. Quality cabinetry to ceiling in kitchen. Tankless water heater. Large tile shower in primary bathroom. Sidewalk community. Very convenient to shopping, groceries and historic downtown Dickson yet you'll feel like you're in the country with the surrounding mature hardwood trees. Estimated completion is mid-January 2026. Depending on timing you may be able to pick your own selections. House pictures are virtual as construction is still in the framing stage.
Location
State TN
County Dickson County
Interior
Heating Electric
Cooling Central Air
Flooring Laminate
Fireplace N
Appliance Electric Range, Dishwasher
Exterior
Garage Spaces 2.0
Utilities Available Electricity Available, Water Available
View Y/N false
Building
Story 1
Sewer Public Sewer
Water Public
Structure Type Brick
New Construction true
Schools
Elementary Schools Oakmont Elementary
Middle Schools Burns Middle School
High Schools Dickson County High School






